2026 Sail Buyer's Guide

55 to 60 feet

This category, which only 10 years ago symbolized ultimate luxury with a few rare semi-custom models, now boasts more than 20 multihulls - some of which are already bestsellers. These catamarans (especially) and a few trimarans all offer absolute comfort for living aboard without no time limit. On the other hand, they become more demanding to handle for a crew of enlightened amateurs, so entrusting these units to professional skippers is therefore recommended.

Dazcat Ocean Cruiser 55

Designed and Built by Sailors, for Sailors

 
 
NEW
The Cornwall-based shipyard has decided to refocus its 40 to 55-foot range and has launched the Dazcat Ocean Cruiser (DOC) range, with a first model, the 55, just announced. The main feature of this Dazcat is the adoption of a forward cockpit/maneuvering station, with the wheel just behind, at the front of the nacelle. Another helm station is located mid-height, to starboard. This new model maintains a strict weight schedule, with carefully centered masses, and is able to take the ground thanks to its shoal draft when the appendages (carbon daggerboards) are raised. As for the bimini, this has been designed to optimize the surface area of solar panels, which also largely cover the dinghy on its davits. Optionally, the Ocean Cruiser can be propelled by a hybrid diesel/electric drivetrain.

Builder: Multihull Centre
Overall length: 55’ (16.76 m)
Beam: 26’3” (8 m)
Displacement: 26,450 lbs (12 t)
Sail area: 1,625 sq ft (151 m²)
Drivetrain: 2 x 40 HP or hybrid
www.multihullcentre.com

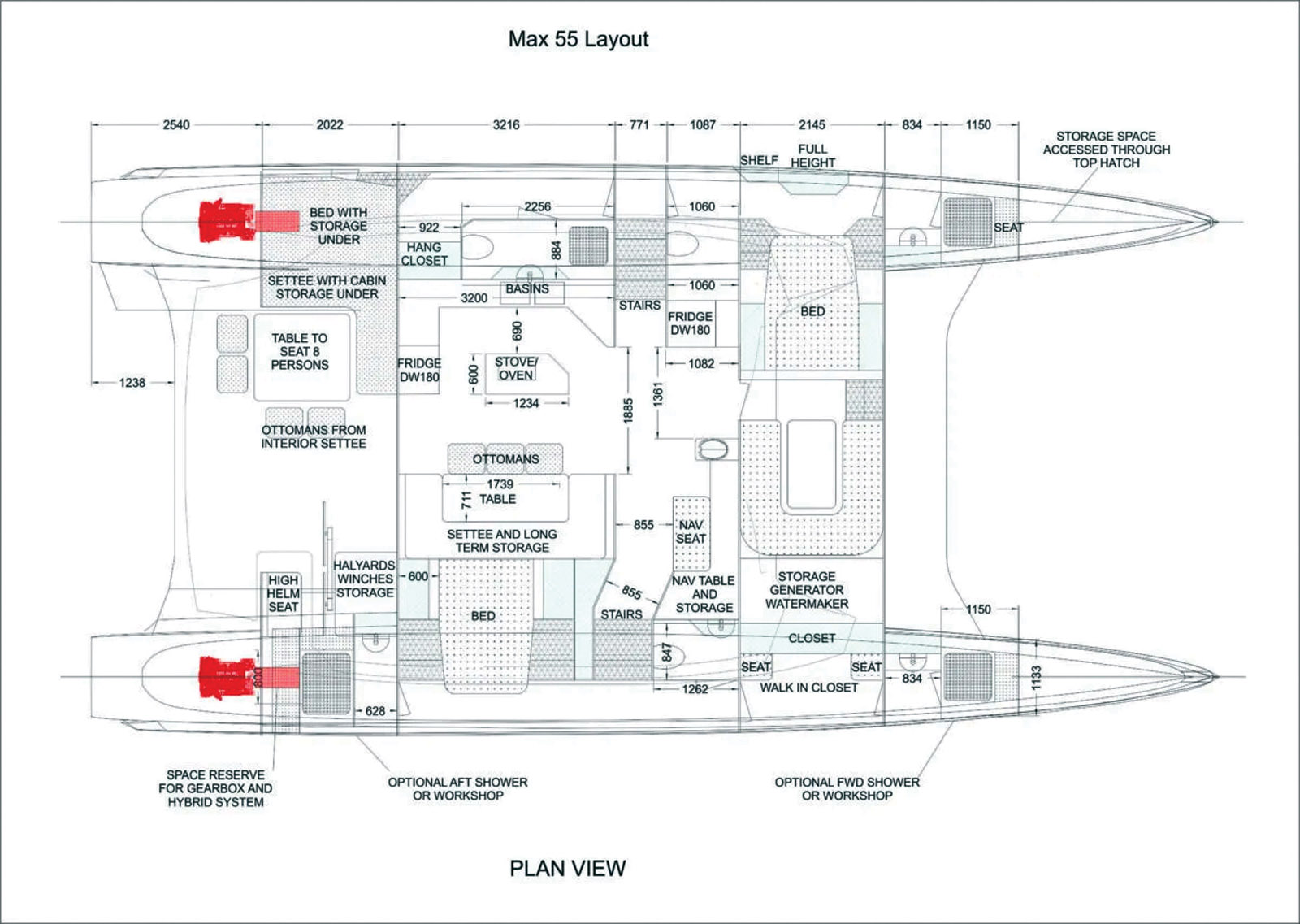
Max 55SC

Performance and Hybrid Propulsion

 
 
The flagship of the Max Cruise Marine range is designed for high performance, with a weight of just 12 tons thanks to its meticulous composite construction using the infusion process. The sail area to weight ratio of 12.29 m²/t makes it very favorable for speed in light airs. The nacelle is well protected from waves as it is 3 feet (0.9 m) above the water. The 55SC comes with skeg keels as standard, but daggerboards are also available as an option. The interior layout can be customized to suit the owner’s requirements. The hybrid propulsion system has already proven itself: a Max 55SC crossed the Pacific Ocean without needing to refuel.

Builder: Max Cruise Marine
Length: 55’1” (16.8 m)
Waterline length: 54’6” (16.6 m)
Beam: 27‘11” (8.5 m)
Draft with skeg keels: 4‘7” (1.4 m)
Displacement: 26,450 lbs (12 t)
Sail area: 1,578 sq ft (146.62 m²)
Price: € 1,054,500 ex-tax
www.maxcruisemarine.com

Knysna 550

Much more Modern than her Predecessors

 
 
NEW
The new Knysna 550, for which hull #1 has already been ordered, is an excellent surprise, with a very neat coachroof design featuring sloping, colored aft pillars and inverted forward windows. The hulls are slender but well-defended at the bow, providing a generous glazed area in the cabins. On the first 3D images of the 550, you can clearly make out the good old, perforated aluminum toerail that already surrounds the Knysna 500SE - when all you swear by is rustic and sturdy, even after four years of in-house development, you can’t go wrong!

Builder: Knysna Yachts
Length: 55’ (16.83 m)
Beam: 29’9” (9.06 m)
Draft: 4’11” (1.5 m)
Displacement: 39,200 lbs (19.6 t)
Mainsail: 1,440 sq ft (133 m²)
Genoa: 672 sq ft (62 m²)
Drivetrain: 2 x 80 HP
Fuel: 264 US gal (1,000 l)
www.knysnayachtco.com

Swisscat 55

A Very Attractive Design

 
 

Log in

Password forgotten ?

Subscribe

Subscribe to Multihulls World and get exclusive benefits.

Subscribe

Most-read articles in the same category

View all the articles

Current issue

MW205 - January-February 2026

Discover the issue

Subscribe now

The latest news from €3 / month

Subscribe to the magazine

Video of the month

Our latest YouTube hit!

Watch the video

The Multihull of the Year

The 2025 Winners

Discover the 2025 winners
For all used-boats for sale

Classified ads

View classified ads
Catana 50 OC
Location :
Antilles Françaises, France
1 200 000,00 Ex. tax€
Knysna 500SE
Location :
Knysna, South Africa
Year :
2023
990 000,00 €
Knysna 500SE
Location :
Knysna, South Africa
Year :
2015
720 000,00 $